本文へスキップ
株式会社正興製作所は仮設資材・保安資材を専門とする会社です。
株式会社正興製作所
TEL:072-245-6800
〒592-8331 大阪府堺市西区築港新町2丁6-18
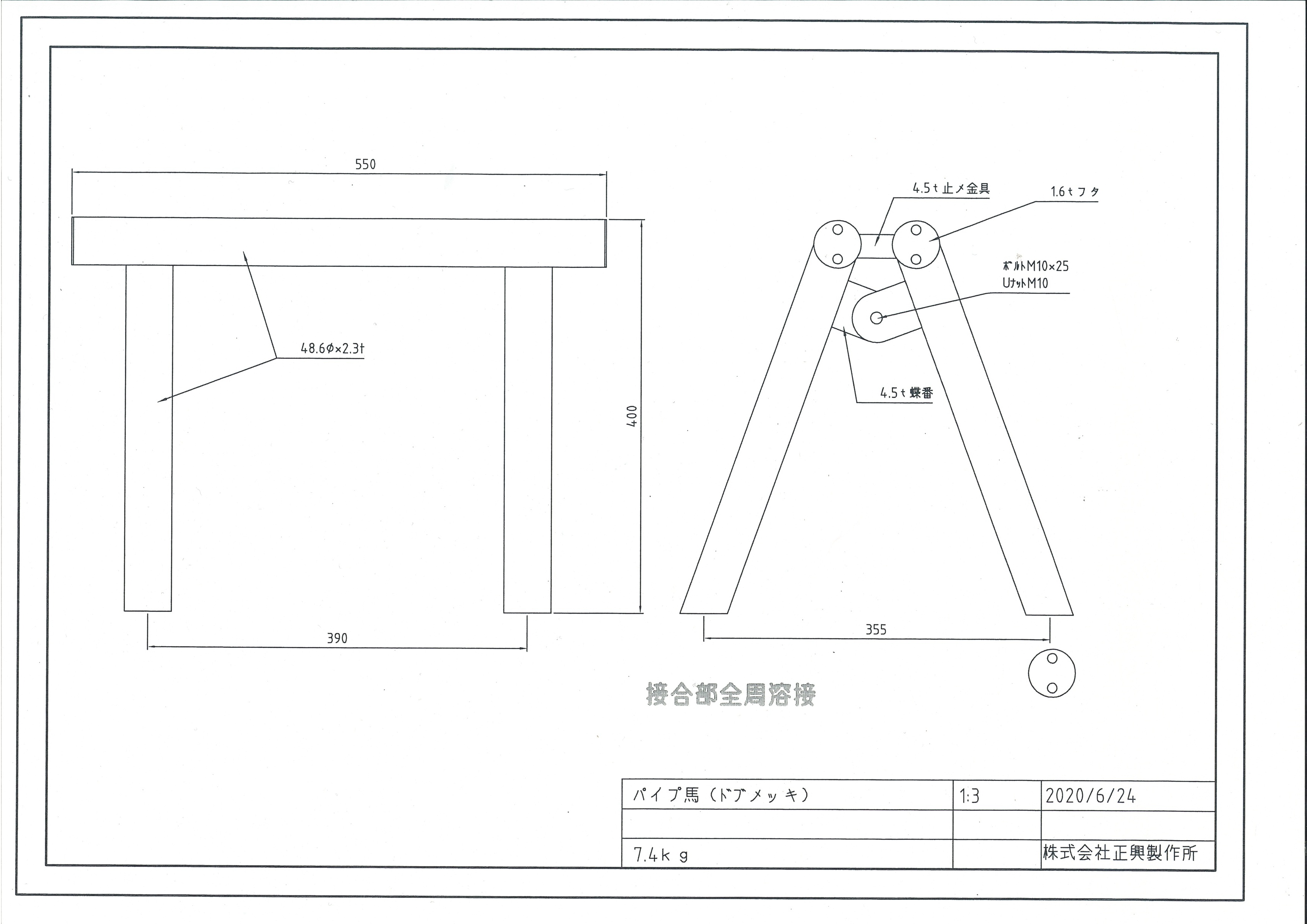
パイプ馬
SERVICE&PRODUCTS
ドブメッキ 折りたたみ式 自重7㎏
建設工事において梁鉄筋の仮支持にご使用いただけます。
コンクリートスラブ型枠上の足場板架設や現場打設コンクリート輸送管の仮支持に!!ソーホース
足場板を組み合わせて運搬車の通路にも!!
鉄筋組立工事の荷台等としても大変便利にお使いいただけます。
このページの先頭へ
トップページ
TOP PAGE
会社方針
CONCEPT
製品一覧
SERVICE&PRODUCTS
NEWS&FAQ
会社概要
COMPANY
お問い合わせ
CONTACT US
採用情報
バナースペース
サービス/製品一覧
アクセス
株式会社正興製作所
〒592-8331
大阪府堺市西区築港新町2丁6-18
TEL 072-245-6800
FAX 072-245-0673